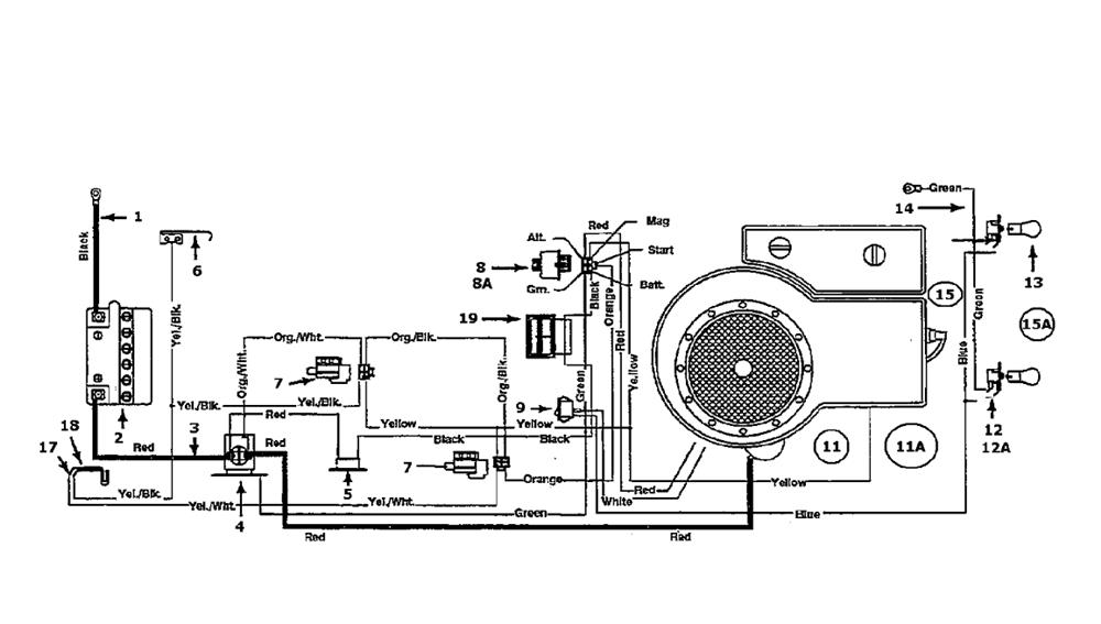
Parts list
Match the number with the image on the left and click "Add" button to add the item to your basket
Please note, that the prices are for individual items
Items might appear more than once on the drawing, please check and adjust the quantity you require.
| Ref | No | Description | Price | |
|---|
| 001 | 725-0976A | NO LONGER AVAILABLE | N/A | POA |
| 002 | EPB3117 | BATTERY 12N14-3A (DRY) | £52.41 | Add to |
| 003 | 725-0926 | NO LONGER AVAILABLE | N/A | POA |
| 004 | 725-1426A | SOLENOID | £24.30 | Add to |
| 005 | 753-0685 | KIT CIRCUIT BREAKER (OBSOLETE) (OBSOLETE) | N/A | |
| 006 | 725-1644 | SWITCH:SPRING:SHORT | £6.24 | Add to |
| 007 | 725-1657A | SAFETY SWITCH | £14.15 | Add to |
| 008 | 725-0267B | IGNITION SWITCH | £25.04 | Add to |
| 009 | 725-0634 | SW:ROCKER | £19.29 | Add to |
| 011 | 629-04031 | HARN ASM:400:W/AMP 629-0195A | £81.14 | Add to |
| 012 | 725-1651 | LAMP SOCKET, LONG | £24.91 | Add to |
| 013 | 725-0963 | BULB | £7.18 | Add to |
| 014 | 725-0916A | WIRE | £7.63 | Add to |
| 015 | 629-0084 | WIRE HARNESS | £11.78 | Add to |
| 017 | 725-1303 | SW:OUTER SEAT SPRG | £3.26 | Add to |
| 018 | 725-1439 | SW:INNER SEAT SPRG | £8.44 | Add to |
| 019 | 725-0925 | AMMETER 620 | £30.37 | Add to |
| 08A | 725-0201 | IGNITION KEY | £6.47 | Add to |
| 11A | 629-0194 | WIRE HARNESS | £234.18 | Add to |
| 12A | 725-1650 | SOCKET LAMP TWIST LOCK (OBSOLETE) | N/A | |
| 15A | 629-0103 | NO LONGER AVAILABLE | N/A | POA |
Easy diagrams to find my part and just a few days for delivery. I would use again..
Richard Wallis
26/03/2026
Great service, had the part in stock when other suppliers didn't. Good price and quick delivery. Will be using them again for sure.
Michael Williams
26/03/2026
My go to for lawn mower parts. Good value, well packaged and prompt. Also very helpful and efficient when I've needed to call.
Michael Williams
26/03/2026
All good. Used before.
Paul Bryan
26/03/2026
All our prices include VAT